ru en en

Конкурс «На лучшее достижение в строительной отрасли Республики Беларусь за 2016 год»

ТЕХНОЛОГИЯ СТРОИТЕЛЬСТВА


картинка

Спортивный комплекс для игровых видов спорта с лыжероллерной трассой в г. Орша


1. Общие сведения

В последние годы при строительстве зданий и сооружений различного назначения нашли широкое применение новые конструктивные системы бескаркасных сооружений с широким спектром уровня комфортности и архитектурного оформления. Современные требования, предъявляемые к таким объектам, а также желание получить гибкую и легко трансформируемую планировку, потребовали создания новых проектных решений для зданий и сооружений различного функционального назначения. Показатель эффективности возведения таких объектов определяется многими факторами. Это и стоимостные характеристики, и технологичность изготовления и монтажа конструкций, а также продолжительность строительства, и социальная значимость. Поиск в этом направлении ведется рядом проектных и научно-исследовательских институтов и строительных организаций Республики Беларусь.
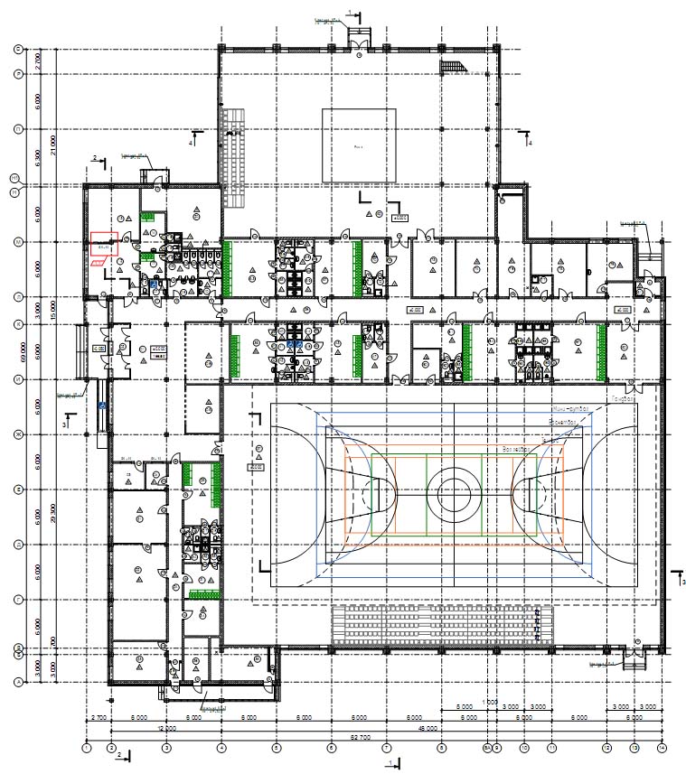
   В 2016 году ОАО «Оршанский стройтрест № 18» реализовал проектное решение ПУП «СМС Оптимастрой» по строительству спортивного комплекса «Олимпиец», который стал вторым по счету объектом в Беларуси, построенным в рамках социальной программы «Газпром — детям в Беларуси». Строительство осуществлено при поддержке ОАО «Газпром трансгаз Беларусь» и Витебского областного исполнительного комитета. Общая площадь спорткомплекса составляет 3 500 м2. Здание одноэтажное с двумя большими залами арочного типа и комплексом вспомогательных помещений.

   Универсальный спортивный зал для игровых видов спорта размером 48х29м (1365 м2), и высотой 15,5 м с раздвижной трибуной на 258 мест и паркетным покрытием (спортивный паркет «КОСВИК») — один из лучших в Беларуси. На площадках комплекса могут проводиться соревнования республиканского и международного уровня по игровым видам спорта: баскетбол, волейбол, гандбол, теннис, сквош, мини-футбол и т.п.

картинка

   Спортивный пол с лицевым слоем из двухслойного паркета представляет собой напольное покрытие премиум класса из натуральной древесины, имеет высокие эксплуатационные характеристики и предназначен для тренировок и проведения соревнований всех уровней по игровым видам спорта. Отличается сниженной областью деформации, простотой конструкции и повышенной стабильностью. Основными преимуществами пола является безупречное качество, долговечность и экологическая чистота продукции.

картинка
Конструкция спортивного пола универсального зала


Технические характеристики спортивного пола Matrix Sport:

ПараметрыЗначение
Высота конструкции, мм43
Порода древесиныДуб
Размер паркета, мм107,95(127)х300…1845
Толщина паркета, мм16
Цвет / ПокрытиеНатуральный / Эластичный спортивный лак COSWICK заводского нанесения
Абсорбция удара, %60 | EN 14808
Вертикальная деформация, мм2,8 | EN 14809
Коэффициент трения скольжения, усл. ед.97 | EN 13036-4
Вертикальный отскок мяча, %94 | EN 12235
Устойчивость к нагрузке качением, мм0,15 | EN 1569


   Зал бокса площадью 598 м2 оснащен современным оборудованием от ведущих мировых производителей. Высота зала бокса составляет 12,5 метров.

картинка
Зал бокса


   Единовременная пропускная способность комплекса — более100 человек. Рядом с комплексом, в парковой зоне, проложена лыжероллерная трасса, протяженностью 2,5 км.

картинка
Схема лыжероллерной трассы спортивного комплекса "ОЛИМПИЕЦ"


2. Конструктивные и технологические решения

   Здание выполнено на свайном фундаменте с устройством монолитных ростверков и сборных столбчатых фундаментов. Железобетонный каркас здания выполнен из колонн сеч. 400х700 (800) с устройством монолитного пояса на отм. +5.420, служащим основанием для арочного покрытия. Материал наружных стен – блоки из ячеистого бетона толщиной 400мм с последующим утеплением минераловатными плитами толщиной 30 и 100мм и облицовкой керамогранитными плитами (вент-фасад), а также трехслойными стеновыми сэндвич-панелями толщиной 150мм. Фасады комплекса оформлены витражами с использованием остекления с покрытием высокоотражающей (80%) пленки. Профиль витражей – алюминиевый.

Достойной заменой каркасным металлоконструкциям является технология, известная как бескаркасное арочное строительство.

   В качестве исходных материалов для арочного покрытия использована рулонная сталь с полимерным покрытием толщиной 1,6 мм. Примененная на объекте технология изготовления арок позволила из рулонного металла посредством передвижной профилирующей установки готовить элементы бескаркасного арочного сооружения непосредственно на строительной площадке.
картинка
Рулонная сталь для изготовления арочных панелей
картинка
Профилирующая установка

   По сравнению с каркасной схемой монтажа профиль арок является несущим и не требует использования ферм и промежуточных опор. Принцип изготовления арок основан на непрерывном формовании П-образного профиля из рулонного металла шириной 600 мм и последующей гибки дугообразных арочных панелей, которые соединяются между собой за счет наличия замка.
   С помощью ручной электрической закаточной машины замки закатываются, и арочные панели неразрывно соединяются между собой в секции по 3 ... 5 штук. После этого арочные секции устанавливаются на подготовленное основание и соединяются между собой той же закаточной машиной. Такое соединение является герметичным и исключает применение болтов, гаек, заклепок и уплотнительных материалов.
картинка
Собранная арочная секция
картинка
Соединение секций между собой

После сборки внутреннего слоя арочного покрытия производится укладка теплоизоляционного слоя из минераловатных плит и монтаж наружных панелей.
картинка
Конструкция арочного покрытия


картинка
Монтаж арочного покрытия завершен

   Благодаря использованию технологии бескаркасного сооружения, скорость устройства арочного покрытия спорткомплекса оказалась довольно высокой. А за счет применения экологически безопасного утеплителя удалось добиться максимального качества сооружения, которое отвечает всем необходимым требованиям и действующим нормам строительства. Такая конструкция не нуждается в дополнительных видах отделки покрытия. Качество построек такого типа заслуживает отдельного внимания. Своим привлекательным дизайном здание, становится неотъемлемой частью архитектуры города и его символом.
   Основными преимуществами арочного покрытия перед традиционными технологиями каркасного строительства являются:
    • высокие темпы строительства сооружений;
    • большая полезная площадь при общей компактности сооружения;
    • низкая себестоимость строительства;
    • мобильность и возможность работы в труднодоступных районах;
    • отсутствие балок, ферм и других дополнительных несущих конструкций;
    • экономия на гидроизоляции и крепеже.
    • высокие эксплуатационные характеристики.

   Отличительной чертой и, безусловно, большим плюсом является то, что конструкция арки имеет предел огнестойкости RE 60 минут, что подтверждено испытаниями ИЦ «ННИ ПБ и ЧС МЧС Беларуси» и, в сравнении с обычными каркасными знаниями, имеет существенное преимущество, т.к. для достижения названного предела огнестойкости металлические конструкции не требуется покрывать огнезащитным составом. Это в значительной степени как удешевляет строительство, так и дает возможность расширить функциональное назначение объекта.

картинка
Спортивный комплекс «Олимпийский» и ледовая арена органично вписались в жилой застройке центра города


План здания спортивного комплекса

картинка


Фасады

картинка
картинка
картинка
картинка


Церемония открытия спортивного комплекса "ОЛИМПИЕЦ"

картинка
картинка
картинка
FreeCurrencyRates.com

счетчик посещений

© 2014, ОАО "Оршанский стройтрест №18"

Рейтинг@Mail.ru