ru en en

Конкурс «На лучшее достижение в строительной отрасли Республики Беларусь за 2011 год»


картинка:ж.д. по ул 1 Мая
ТЕХНОЛОГИЯ СТРОИТЕЛЬСТВА

Строительство сборно-каркасного жилого дома на пересечении ул. 1 Мая и ул., Свердлова в г. Орша

В последнее время при строительстве жилых зданий в Беларуси нашли широкое применение различные конструктивные системы с несущим каркасом и с широким спектром уровня комфортности и архитектурного оформления фасадов. Современные требования, предъявляемые к ограждающим конструкциям зданий в части их сопротивления теплопередаче, а также желание получить гибкую и легко трансформируемую планировку жилья, потребовали создания новых типов многоэтажных жилых зданий. Показатель эффективности жилого фонда определяется многими факторами. Это и стоимостные характеристики, и технологичность изготовления и монтажа конструкций, и продолжительность строительства, и гибкость планировки. Поиск в этом направлении ведется рядом проектных и научно-исследовательских институтов Республики Беларусь.
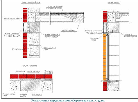
ОАО «Оршанский стройтрест № 18» реализовал проектное решение ОАО «Проектного института БелГПИ», который имеет большой опыт проектных работ в строительном комплексе. На пересечении улиц 1 Мая и Свердлова в г. Орша сдан в эксплуатацию 11-этажный 3-секционный сборно-каркасный жилой дом. В строительстве дома был использован вариант изготовления сборных элементов перекрытий в опалубочных формах многопустотных плит с устройством подрезки опорной части на глубину 115 мм. При проектировании было отдано предпочтение варианту каркасного здания с системой продольных ригелей, которые воспринимают нагрузку, как от плит перекрытия, так и от наружных трехслойных стен поэтажного опирания. При этом потолочная плоскость плит перекрытия совпадает с нижней плоскостью ригелей средней оси здания, что позволяет получить гладкие потолки и, в результате, значительно улучшить эстетическое восприятие внутреннего интерьера квартиры.
Каркас здания рамно-связевый, полносборный. Крайние колонны прямоугольного сечения 300х600мм и средние - 300х1000мм одно- или двухэтажной разрезки входят в состав стен. Стены трехслойные: блоки из ячеистого бетона с утеплителем из пенополистирола и облицовочный слой из керамического и силикатного кирпича. Ригели средние - плоские, высотой 270мм с полками для опирания плит. Ригели крайние - прямоугольные с «термовкладышами» для исключения «мостиков холода». Высота ригелей 300мм, опирание плит перекрытия на верхнюю плоскость ригелей. Ригели крайних рядов служат одновременно и оконными перемычками. Бетон ригелей принят С 30/35, бетон колонн С25/30.
Сетка колонн дома 3.6х4.8(6.3)м и 3.9х4.8(6.3)м, в принципе может иметь разные размеры, кратные длине плит. Плиты рядовые и сантехнические выполняются в опалубочных формах многопустотных плит перекрытий типовых серий с использованием съемных вкладышей, образующих подрезку одного торца для опирания на ригели среднего ряда в одной плоскости. Бетон плит С16/20.
Стык колонн предусмотрен ванной сваркой выпусков арматуры с последующим обетонированием.
Аналогичная схема железобетонного каркаса с успехом применяется при строительстве домов и в Российской Федерации.
Здания подобного типа по сборно-каркасной схеме построены в ряде городов Беларуси и России:
    • 70 кв. ж.д. по пр. Фрунзе в г. Витебске;
    • 120 кв. ж.д. в г. Новолукомле;
    • 144 кв. ж.д. по пр. Строителей в г. Витебске;
    • 16-ти этажный ж.д. в г. Воскресенске;
    • 12-17-ти этажные ж.д. в г. Электроугли и пос. Мосрентген Московской обл.;
    • 16-ти этажные ж.д. в г. Рязани и Брянске;
    • 9,10, 16-ти этажные дома в г. Смоленске;
    • 5-ти этажные дома в г. Гагарине;
    • 9-ти этажный ж.д. в г. Королеве;
    • торгово-административное здание в г. Вязьма.
Однако, в отличие от приведенных объектов, строительство жилого дома в г. Орша принципиально отличалось конструкцией трехслойных наружных стен с облицовочным слоем из кирпича. Это, в свою очередь, в значительной мере осложняло выполнение работ по устройству облицовочного слоя, т.к. зона облицовки оказывалась закрытой колоннами прямоугольного сечения. С этой целью были разработаны и успешно применены навесные подмости для работы на проблемных участках наружных стен. Благодаря этому методу была достигнута возможность параллельной работы бригад монтажников и каменщиков.
Применение универсальных кондукторов собственного изготовления для монтажа колонн позволило производить работы с различной ориентацией и взаимным расположением колонн в плане.
При строительстве дома предусматривалась модификация железобетонных конструкций с учетом возможности максимального использования существующего парка форм и оснасток и сохранения годами отработанной технологии производства. Технико-экономический анализ показал значительное преимущество предложенного каркаса по сравнению со зданиями серии 1.020. Проведенные испытания опытных фрагментов каркаса и серии образцов плит перекрытия с подрезкой на опоре дали положительные результаты. Конструктивная система жилых зданий в каркасном исполнении на базе имеющейся оснастки с доработкой конструкции многопустотных плит наиболее соответствует современным требованиям.
Каркасная схема здания обеспечивает свободу архитектурно-планировочных решений в широком диапазоне, создаёт оптимальные условия для размещения помещений общественного назначения в первых этажах жилых домов, поэтажного изменения планировочных решений, а также проектирования специализированных зданий.
В ОАО «Оршанский стройтрест №18» функционируют аккредитованный испытательный комплекс и аттестованная служба контроля качества. Комитетом по стандартизации, метрологии и сертификации при Совете Министров Республики Беларусь выдан Аттестат аккредитации испытательного комплекса. Получено Свидетельство о технической компетенции службы контроля качества. Работы, выполняемые стройтрестом №18, отвечают требованиям:
    • сертификата соответствия «Системы менеджмента качества производства сборных железобетонных изделий и конструкций, арматурных изделий и товарного бетона» в соответствии с СТБ ISO 9001-2009.
    • сертификата соответствия «Системы управления охраны труда при производстве строительных изделий и конструкций из бетона и железобетона и сухих смесей в соответствии с СТБ 18001-2009.
    • сертификата соответствия экологической «Системы управления окружающей среды при производстве железобетонных и бетонных конструкций и изделий, товарного бетона, сухих смесей, добычи песка и песчано-гравийной смеси» в соответствии с СТБ ИСО 14001-2005.
    • сертификата соответствия на облицовочные и штукатурные работы наружные и внутренние (с простым и улучшенным покрытием);
    • сертификата соответствия на малярные работы внутренние и наружные (с простым и улучшенным покрытием);
    • сертификата соответствия на устройство дорожных одежд с покрытием из плит тротуарных;
    • сертификата соответствия на устройство полов с монолитным покрытием и покрытием из древесины и изделий на ее основе, плиточных материалов, синтетических рулонных материалов и изделий на их основе;
    • сертификата соответствия на заполнение дверных проемов (с применением дверей из древесины);
    • сертификата соответствия на заполнение оконных проемов (с применением окон из поливинилхлоридного профиля и древесины).

картинка:k2011_2

картинка:k2011_3

картинка:k2011_4

картинка:k2011_5

картинка:k2011_6

картинка:k2011_7

картинка:k2011_8

картинка:k2011_9

картинка:k2011_10

картинка:k2011_11

картинка:k2011_12

картинка:k2011_13

картинка:k2011_14

картинка:k2011_15

картинка:k2011_16

картинка:k2011_17

картинка:k2011_18
Сборно-каркасный жилой дом после ввода в эксплуатацию.

картинка:k2011_19

картинка:k2011_20

FreeCurrencyRates.com

счетчик посещений

© 2014, ОАО "Оршанский стройтрест №18"

Рейтинг@Mail.ru